| 31m Towing Tug | |
| Id ọkọ oju omi | 9922 |
| Ẹka | Ọkọ oju-omi kekere |
| Kọ Ọdun | 2025 |
| Iye owo | $1,950,000 |
| Ọkọ fi kun ọjọ | 2025-10-25 |
| Fi kun nipa | SeaBoats |
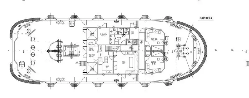
Awọn iwọn ọkọ oju omi
| Apapọ gigun (LOA), m | 31 |
| Akọpamọ ọkọ, m | 3.2 |
Alaye ni Afikun
| Ti ara ẹni |
| Awọn ọkọ oju omi ti o jọra | Ṣe afihan awọn ọkọ oju omi ti o jọra |
| Awọn ibeere | Awọn ibeere rira ni ibamu |
| imeeli | Firanṣẹ E-mail |




